「
粗野主義是現代建築中的一場運動,它創造了20世紀最引人注目的建築設計,但它的成就也引發很多爭議,部分原因是它強調使用未加工的混凝土製作外立面。
粗野主義興起於第二次世界大戰之後,但它植根於功能主義紀念碑式簡約的思想,而這些思想曾定義了早期的現代主義建築。粗野主義嘗試將早期的原則應用於戰後的世界,因為戰後的世界迫切需要進行城市重建。
從這個意義上說,粗野主義的部分靈感來源於民主社會主義的社區理念,但它也受到了特立獨行建築師的前衛特質的推動。因為它被用於大規模的社會住房項目,所以在粗野主義達到頂峰後的幾十年裡,城市的貧困和衰落卻成了它的代名詞。
」
粗野主義最著名的特點是外牆使用生混凝土(法文為”béton brut”),在建築外部留下施工過程的痕跡,如液態混凝土凝固時留下的孔洞和接縫,對粗野主義建築師來說,這種方法展現了對材料質地和施工勞動的真實態度,是他們參與社會、以道德為導向的工作方式的縮影。
粗野主義強調建築材料的物理特性,這是對路易斯·沙利文著名的”形式服從功能”宣言的更新,這一格言啟發了早期的現代主義建築浪潮,最終形成了國際風格。但是,國際風格通常傾向於時尚、流線型的建築,即用最少的錢辦最多的事,而粗野主義則更傾向於強調材料的豐富性,讓人們關注混凝土、鋼材和石材的重量、密度和質量。
粗野主義的興起正值人們急需大規模、經濟實惠的住宅建築之時。當時,歐洲的主要城市都受到了嚴重的轟炸破壞,而清理城市貧民窟的需要和改善普通市民命運的訴求,激發了歐洲大陸大部分地區的大規模重新安置項目。粗野憑藉其設計規模和對廉價建築材料的重視,成為許多此類項目的首選風格,但其得到的評價卻好壞參半。
粗野主義是本世紀中期更廣泛的現代主義功能設計浪潮的一部分。視覺藝術和文學中的現代主義通常與20世紀早期聯繫在一起,與複雜性和難度的概念聯繫在一起,而這種世紀中期的現代主義則以其標誌性的簡潔設計、對大規模生產和實用性的平等主義強調而著稱,這種美學植根於包豪斯和構成主義的進步。
粗野主義無疑效仿了布魯托藝術(Art Brut)運動對粗暴物質性的強調。英國的粗野主義建築師艾莉森和彼得·史密森等人與布魯托藝術的主要代表人物讓·杜布菲相識,嘗試通過他們的設計精神來模仿杜布菲原始、內斂的設計方法。
· 01 ·
代表建築與粗野簡史
Brutalist History
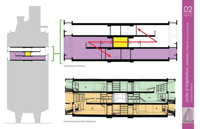
01.馬賽公寓 1952年
勒·柯布西耶

這座由模組化公寓組成的12層住宅建築群高聳在巨大的混凝土塔架上,被許多評論家認為是粗野主義的誕生代表。它以原混凝土為飾面,造型留下的線條強調了建造過程,表面粗糙的紋理則營造出一種生機勃勃的感覺。
柯布西耶還通過這座建築開創了”垂直花園城市”的概念,將居民可能需要的所有服務設施都納入建築本身。每隔三層就有一條城市街道,街道兩旁有商店、餐館、娛樂設施和幼稚園,屋頂上有健身房、跑道、劇院舞臺和淺水池。

建築評論家喬納森·格蘭西寫道:”這種混凝土巨型建築以前從未見過——它那粗壯的腿和粗糙的表皮,以及它與地質構造和遠洋輪船的奇妙聯繫。它既是一個有生命的生物,又是一個有目的的機器”。柯布西耶稱之為“La Cité Radieuse”,即 “光芒四射的城市”。
柯布在20世紀40年代沒有完成過一個項目,他所有的大型建築設計提案都被否決了。因此,法國重建與城市規劃部長同意柯布的“unité d’habitation de grandeur conforme”,即”標準尺寸的住房單元”設計方案,在飽受戰火摧殘的馬賽進行施工時,這是柯布西耶的第一個公開委託項目。

他後來寫道,他的設計靈感來自於1907年對佛羅倫薩查特豪斯修道院的參觀,在那裡他了解到”標準化帶來完美,人的一生都在這種衝動下勞作:讓家成為家庭的聖殿”。
喬治·坎迪里斯於1945年加入柯布工作室,被任命為建築的項目建築師,設計包含337套複式公寓,可容納1600人,採用了模組化公寓單元,正如柯布所說,”就像酒瓶裝在架子上一樣”,這些單元融入更大的結構中。
由於每個模組都延伸至大樓的寬度,因此每套公寓的兩端都有景觀和露台。住戶可以在23種不同的公寓配置中進行選擇,儘管柯布西耶也設計了室內陳設,但住戶只能選擇室內顏色。大樓沒有任何裝飾,只有屋頂的通風井,做成了遠洋輪船的煙囪,柯布非常欣賞這種形式。

這座建築使柯布成為20世紀50年代法國建築界的領軍人物,1952年被授予榮譽軍團司令稱號。此後,他還創造了許多類似的”居住區”,他對城市生活的理念影響了盧西奧·科斯塔、奧斯卡·尼邁耶和許多其他著名建築師。
這座建築被當地人和居民親切地稱為“La Maison du Fada”或”瘋子之家”,於2016年被聯合國教科文組織列為世界遺產。
02. 波士頓市政廳 1963-1968年
Kallmann McKinnel & Knowles與Campbell、Aldrich & Nulty和Lemessurier Associates

這座建築的不同外牆部分由磚塊或混凝土澆鑄而成,圖案各異,它們像拼圖一樣組合在一起,每一塊都反映了其內部功能。公共通道位於底層,部分建在隆起的土地褶皺中,採用紅磚與周圍的磚砌廣場融為一體。二層由巨大的混凝土塔架支撐,橫樑外露,顯示出市議會和市長辦公室的存在,而預製的上層則是行政辦公室,其小窗戶由混凝土澆鑄的模子框住。
與許多粗野主義建築一樣,這一大膽的設計是對現代主義建築著名的”形式應服從功能”這一名言的更新。
建築一半的混凝土是在鋼模中預製的,使用了深色水泥,而其餘的混凝土則是在現場用木框澆鑄的。二樓的塔架顏色較深,外觀粗糙,三樓的塔架顏色較淺,外形平滑,因此二者都沒有進行表面處理,從而形成了顏色和質地上的對比。

建築產生的色調變化感與倒金字塔形形成鮮明對比,後者通過塔柱和窗框的垂直線條將人們的視線向下引向底層,似乎在強調建築的公共功能。
建築的設計師受到了柯布、義大利文藝復興時期市政廳以及附近亞歷山大·帕里斯的昆西市場花崗岩建築的影響。卡爾曼當時是哥倫比亞大學的教授,而麥金內爾則是該校的研究生,他們的設計在1962年的競賽中獲勝,競賽的目的是建造一座無障礙的市政府大樓,將使用率最高的部門設在底層。

從一開始,這座建築就飽受爭議,在建造過程中就有拆除的呼聲。建成後的幾十年裡,它經常在公眾調查中被評為”世界上最醜陋的建築”之一。與此形成鮮明對比的是,對建築師進行的民意調查顯示,它一直被認為是美國十大建築設計之一,這種意見分歧是粗野主義建築所能引發的討論和不同觀點的典型表現。
03. 特雷利克塔 1966-1972年
埃諾·高芬格

埃諾·高芬格設計的特雷利克塔創造了一個獨特的標誌性輪廓,左側的服務塔通過天橋與右側的中央大樓相連。這座31層的塔樓由裸露的混凝土製成,形成了由水平線和垂直線組成的幾何網格,與天橋的水平線和服務結構的高聳垂直線相得益彰。
建築評論家蒂姆·溫史丹利(Tim Winstanley)評價:”大膽的輪廓讓人聯想到中世紀城堡,憑藉其毫不妥協的材質,.這座塔樓是倫敦戰後景觀中一個大膽的存在,是大眾的表現主義紀念碑”。
天空之橋在兩個主要構件之間的空地上勾勒出輪廓,似乎在建築的水平和垂直網格中捕捉到了天空本身。”毫無疑問,兩個元素之間的分離所產生的空隙將成為建築師真正的傑作,它是一個強大的建築遺產”。

1969年,大倫敦委員會委託將建築作為社會住房,設計在很大程度上源於建築師的小型雙子建築巴夫倫塔,他曾在那裡居住過一段時間,並向居民詢問如何改進建築的細節,這反映了他的信念,即建築是”只有從內部才能欣賞的作品”。
因此,特雷利克大廈充分體現了建築師對細節的關注,包括採用雙層玻璃以降低噪音、在天橋上安裝墊圈以減少震動、窗戶採用旋轉裝置以方便清潔、各種節省空間的設計,以及在服務塔頂部安裝供暖鍋爐和儲水罐以減少對管道和水泵的需求。
特雷利克塔一經啟用,就遭到多次破壞,整個樓層被淹,電路被毀,隨後,這裡成為了眾所周知的犯罪高發區。它被稱為 “恐怖之塔”,體現了與殘暴主義塔樓相關的社會問題,因為公眾認為其粗糙的外觀反映了社會人口的困境。

許多人認為這座建築是巴拉德的小說《高樓大廈》的靈感來源,在這部烏托邦小說中,一棟公寓樓裡的2000名住戶以暴力手段互相殘殺,用巴拉德的話說,就是”一臺戰爭機器”。
20世紀80年代中期,隨著政府決定將部分公寓出售給願意在此居住的人,這座大廈的聲譽開始好轉,併成立了新的租戶協會,遊說改善情況。1998年,建築被列為二級保護建築,專供具有特殊歷史意義的建築使用。如今,這座建築代表著溫史丹利所說的”不再危險的貧民窟的時尚形象”。
04. 亨斯坦頓現代中學 1954年
艾莉森和彼得·史密森

史密森夫婦設計的亨斯坦頓現代中學在當地被稱為”玻璃房”,強調其長方形的玻璃中央結構,即使從遠處也能看到其鋼結構框架。建築師將他們對現代主義的興趣,特別是對密斯作品的興趣,與對裸露材料和結構的明顯強調結合在一起,表現為突出的水塔鋼罐和外部鍍鋅鋼框架,用磚填充,裸露的表面粗糙而未加工。
這些特點使得建築評論家們第一次用”新粗野主義”來形容這座建築。雷納形容亨斯坦頓學校:”在現代建築中幾乎是獨一無二的,因為能看出來是由什麼材料製成的,是如何工作的,除了空間的遊戲之外,沒有其他東西可以看”。
從這個意義上來說,這座建築的設計以其簡潔而著稱,它採用了鋼製H型框架,實現了”類似於真正的雙軸對稱”。班納姆稱讚設計”對細節的設計非常節制”,並指出”建築的影響力主要來自於樓梯和扶手等部件的不規則性,但又絕對一致”。

仔細觀察還能發現設計有許多創新之處,矩形結構包括兩層樓,教室位於一樓,室內設計創新性地利用樓梯柱通向不超過三間教室,最大限度地減少了學生走動時的噪音和干擾。
史密森夫婦認為粗野主義是”一種倫理,而非美學”。他們希望將重點放在與戰後普通生活現實相聯繫的功能性理念上。”賦予形式”的基本設計受到了建築評論家尼可拉斯·佩夫斯納的稱讚,稱其具有”對稱、簡潔、精確”的特質,在英國建築界產生了廣泛的影響。
05. 67號公寓 1967年
摩西·薩夫迪

這座建築群坐落在聖勞倫斯河畔,由354個預製混凝土立方體組成,立方體呈不規則排列,由鋼纜連接。建築高達12層,其外形給人一種有機生長的感覺,彷彿是通過長期自發的社區活動演變而成的。
幾何形狀元素的複製營造出一種整體感,而不可預知的排列方式則傳遞出一種動態的能量感。在讓人聯想到古代建築的同時,也讓人想到更多現代意象,類似立體主義雕塑,甚至是建築師用來製作初步模型的樂高積木的組合體。
摩西·薩夫迪在以色列出生長大,十幾歲時隨家人移居加拿大。他在以色列的一個公共定居點的生活經歷,以及柯布和新陳代謝學派都對他的建築設計產生了影響。

薩夫迪在麥吉爾大學師從桑迪·範·金克爾,他的碩士論文中就有關於67號公寓的設計構想。他打算建造”一座能讓每個單元都具有住宅品質的建築:人居環境將是花園、與自然的接觸、街道而不是走廊”。
158套公寓中的每套公寓都由兩到三個立方體組成,每個立方體都有一個私人花園露台,建築師稱之為”空中花園”。項目旨在作為中產階級經濟適用房的試點模式,將建築評論家吉納維芙·派恩特所稱的”兩種看似不可調和的類型:中產階級自治象徵的獨立式住宅和高密度城市生活現實寫照的公寓大樓”結合在一起。
薩夫迪的設計在67年世博會期間吸引了700多萬參觀者,其中包括著名的外國政要,並被《紐約時報》和《時代》雜誌報道。

他的設計方法也是我們現在所說的”設計思維”的先驅:建築師和規劃師通過設想激進的新建築形式,可以使人類生活更快樂、更健康、更和諧。建築師的初衷是希望建築所採用的設計類型能在城市規劃中得到廣泛應用,但他的設計失敗了,主要原因是成本超出預算。
到20世紀70年代初,隨著公共資金的減少,官方對此類項目的贊助也逐漸枯竭。但進入二十一世紀後,人們對”67號公寓”這一可行模式的興趣又重新燃起,2016年多倫多委託BIG設計的”人居 2.0″就證明了這一點。2009年,”67號公寓”被授予遺產地位。
06. 布雷爾大樓 1966年
馬塞爾·布勞爾和漢密爾頓·史密斯

這座建築外形獨特,一眼就能辨認出來,一個巨大的混凝土立方體聳立在一座倒置的金字塔上。各種顏色的矩形花崗岩外牆突顯了建築的整體性,梯形窗戶形狀像一隻傾斜的眼睛,建築相鄰兩側不對稱的小窗戶使這座五層高的建築看起來像一個巨大的活物,向城市景觀投射出許多視線。
馬塞爾·布勞爾出生於匈牙利,在包豪斯開始了他的工匠和設計師生涯,他的建築風格幾經變化,最終形成了粗野主義風格。《紐約時報》建築評論家將布魯爾大樓形容為這座城市”最不喜歡的建築”,但她也指出,布魯爾”周到的規劃和對材料使用的敏感藝術性”創造了一個”提升到建築藝術水平的博物館”。
藝術評論家斯蒂芬·沃利斯指出,這座設計起初似乎與附近的褐石唐人街格格不入,但最終卻因”其獨特的外形和特立獨行的特徵”而備受讚譽。
07. 國家議會大廈 1962-1982年
路易斯·康

這座具有紀念意義的建築包括立法大樓和孟加拉國議會成員的住所,包括人工湖佔地81公頃。主樓由淺色混凝土砌成,包括主廣場、南廣場和總統廣場,位於建築群的中心,三面環湖,湖水流向紅磚和混凝土砌成的議員住宅。
對比鮮明的形狀和質感區分了這些建築的功能,而簡潔的外觀和巨大的牆體,加上凹陷的門廊和幾何形狀的大開口,營造出一種動態的統一感。建築群位於孟加拉沙漠中,龐大的體量、大量的水體和綠地使其免受炎熱的影響,同時也創造了一個全方位的感官環境。

建築於1962年開始建設,當時遺址仍位於東巴基斯坦,1971年孟加拉國解放戰爭中斷了建設。同年,孟加拉獨立,建築作為民族自豪感和自由的象徵,重新獲得了重要地位。
路易斯將設計中的大部分大型空心柱設想為折射和框定陽光的房間:”光的製造者,可以呈現複雜的形狀,成為空間的支撐,併為空間提供光線。我正在努力發展這一元素,使其成為一個詩意的實體,在構圖之外擁有自己的美”。
與此同時,用於創造柱子開口的幾何圖形反映了孟加拉的文化主題,是場地設計中民俗與現代參照物融合的典型。
建築評論家愛德華多·索薩將國家議會遺址描述為 “現代建築被轉錄為孟加拉本土建築一部分的非凡典範”。1974年路易斯逝世後,他的同事大衛·威茲完成了該項目,隨後獲得了阿卡汗建築獎。
· 02 ·
關鍵詞
Word
01. 勒·柯布西耶
柯布西耶是現代建築的先驅,他是粗野主義的創始人之一,對粗野主義產生了深遠影響,還創造了一些最具代表性的建築。他在巴黎師從奧古斯特·佩雷特時就開始使用混凝土,1914年又跟隨工程師馬克斯·杜波依斯學習鋼筋混凝土技術。
柯布後來回憶道:”鋼筋混凝土為我提供了難以置信的資源、多樣性和充滿激情的可塑性……”。他早期設計的Dom-Ino House是第一次世界大戰後所需臨時住所的未建成原型,採用了混凝土模組結構,住戶可以利用現場儲存的材料自行建造外牆,這個構想是”一個可並置的建築系統,按照無限多的計劃組合”。

= Dom-Ino House =
他在法國設計的馬賽公寓被視為城市規劃中粗野主義的第一個範例,而他的”焦耳之家”(Maisons Joule)則影響了這一運動對私人住宅的處理方法。
然而,柯布並不認同”粗野主義”運動這一說法,當他的作品被描述為粗野主義運動的一部分時,他感到非常憤怒。
他寫道:” ‘粗野建築’誕生於馬賽公寓,那裡有八十個承包商和大量混凝土,根本無法想象如何通過渲染構建有用的關係。我決定讓一切都“brut”(原始/未完成),我稱之為‘béton brut’,英國人立刻跟風,稱我為‘Brutal’。」
02. 英國的粗野主義:艾莉森和彼得·史密森
許多參觀過戈特別墅的英國建築師都接受了”新粗野主義”這一標籤,將其引入英國國內,它就像野火一樣蔓延開來,因此粗野主義有時仍被稱為新粗野主義。
英國,尤其是史密森夫婦的作品,之所以與粗野主義緊密聯繫在一起,部分原因是英國建築師和評論家故意採用了這一說法。作家雷納·班納姆在1951年的一篇文章中將粗野主義稱為”英國的第一場本土藝術運動”,並寫道術語起源於柯布的”生混凝土”和讓·杜布菲的”野蠻藝術”。

= 讓·杜布菲的”野蠻藝術” =
班納姆對這一新興風格的支持者進行了區分,認為阿斯普蘭德的”新粗野主義”強調的是風格或美學,而不是新粗野主義所強調的道德。1953年,英國建築師艾莉森·史密森在《建築設計》中使用了”粗野主義”一詞來描述她設計的soho區住宅——
「住宅完全暴露在外,在可行的情況下沒有任何內部裝飾。如果這座住宅建成,它將成為英國新粗野主義的第一個代表”。
1949年,他們設計的諾福克亨斯坦頓現代中學在建築設計競賽中獲勝,這所學校後來被視為粗野主義風格的典範,兩人很快就成為了新運動的領導者,通過與倫敦當代藝術學院的藝術家們合作,以及作為第10小組的成員,他們的聲望與日俱增。

= 史密森夫婦 =
史密森夫婦撰文倡導使用未完工的混凝土、裸露的建築結構和廉價的人造材料來建造適合特定地點的建築。他們將粗野主義運動置於歷史背景中,引用密斯的早期作品、賴特的建築以及日本傳統建築,他們認為日本傳統建築表現出”對自然世界的敬畏,以及由此對建築世界材料的敬畏”。
他們的想法受到了二戰後英國經濟和社會現實的影響,許多被嚴重轟炸的城市需要進行大規模重建,他們將自己的方法描述為”修修補補”。
03. 1953年 “生活與藝術的平行”展覽

艾莉森和彼得·史密森與攝影師奈傑爾·亨德森、藝術家愛德華多·保羅齊共同組織了1953年在倫敦當代藝術學院舉辦的”生活與藝術平行展”。
這次創新的展覽將一系列看似不同的圖像並置在一起,強調了攝影、大規模生產的圖像、建築和設計對前衛藝術的重要性。當時,這四位藝術家是獨立小組的成員,小組是一個由設計師、建築師和藝術家組成的鬆散協會,1952年至1955年期間在倫敦當代藝術學院舉行會議。

史密森夫婦的朋友愛德華多·保羅齊還與法國藝術家讓·杜布菲有過接觸,史密森夫婦指出,粗野主義的核心是”物質性”,而物質性正是杜布菲的”野蠻藝術”的起源。
杜布菲創造了”野蠻藝術”一詞,用來定義在既定藝術世界之外創作的藝術,特別是由自學成才的藝術家、兒童和精神病患者創作的藝術。他本人的作品以強調身體的野蠻性、使用原始紋理和原始形式肖像而著稱。
04. 第10小組

= 注意看右二是丹下健三 =
史密森夫婦與建築師喬治·坎迪里斯、亞普·巴克馬、詹卡洛·德卡洛、阿爾多·凡·艾克和沙卓·伍茲都是第10小組的核心成員。小組於1953年在國際現代建築大會上成立,將自己描述為”一個由建築師組成的小家庭,他們相互尋找,因為每個人都知道其他人的幫助對於自己個人作品的發展和理解是必不可少的”。
他們反對20世紀初現代主義建築發展所強調的可移植的功能主義,而贊成反映特定人群的價值觀和生活方式並創造社區的城市規劃。艾莉森·史密森表示,”從’歸屬’身份中產生豐富的鄰里關係,貧民窟的短窄街成功地解決了寬敞的重建經常失敗的問題”。
1954年第10小組的一次會議上,史密森夫婦寫下了”杜恩宣言”,表達了他們的集體建築倫理——

“除了作為社區的一部分,考慮房屋是沒有用的”。宣言中還包括他們創造的著名概念”空中街道”,意為通往高層住宅的高架人行道,作為在高密度住宅中營造社區生活感的一種手段。
在隨後的幾十年裡,第10小組對國際上新粗野主義的興起以及荷蘭建築師阿爾多·凡·艾克和雅各布·巴克馬創立的結構主義運動的發展都產生了深遠的影響。巴克馬參加了每次會議,成為10人小組的領導力量,1981年他去世後小組也隨之解散。
05. 雷納·班納姆

隨著1955年《新粗野主義》一文的發表,建築評論家和歷史學家雷納·班納姆成為粗野主義運動的主要理論家和倡導者。這篇文章界定了粗野主義的歷史背景,認為粗野主義運動受到了柯布、讓·杜布菲以及法國音樂家皮埃爾·謝弗在20世紀40年代提出的”混凝土音樂”(musique concrète)的影響。
這篇文章以勒·柯布西耶的名言“L’architecture, c’est avec des Matières Brutes, établir des rapports emouvants”(”建築與原材料建立動人的關係”)為題記,強調使用未完工的混凝土來創造大膽的結構。
班納姆將粗野主義建築的主要原則定義如下:”一 形象的可記憶性;二 結構的清晰展示;三 現成材料的價值。
他對”形象的可記憶性”的解釋是:”建築應該是一個可以立即理解的視覺實體,眼睛所捕捉到的形式應該通過建築使用中的經驗來確認”。

與此同時,他在文章中對運動的某些批評者提出了挑釁,與運動某些支持者的社區倫理形成鮮明對比的是,”新粗野主義的特點恰恰是它的野蠻、它的血性”。
班納姆在文章中將史密森的亨斯坦頓學校定義為粗野主義的典範,並將路易斯·康的耶魯大學藝術中心也列為這一運動的表現形式,儘管後者在很多方面更接近於國際風格的時尚簡約主義。
“兩者都展示了其基本結構,都強調展示其材料”。他 隨後出版了《新粗野主義:倫理還是美學?》一書,進一步將粗野主義編纂成典,並提到了許多近期的建築項目。
· 03 ·
分支概念
Concept
01. 空中街道

“空中街道”的概念是20世紀60年代開始流行的粗野主義建築特色,包括使用高架人行道連接高架公寓樓,以營造鄰里感。史密森夫婦設計的金巷莊園就是一個早期的例子,莊園未建成,後來成為倫敦羅賓漢花園的樣板,建築師將項目描述為 “在城市的老工業區展示一種更愜意的生活方式”。
在隨後的幾十年裡,這種粗野主義的社區互動模式被廣泛應用於英國的公共住宅中,特別是埃諾·高芬格在東倫敦設計的巴夫隆大廈和特雷利克大廈。曼徹斯特的Hulme Crescents是英國最大的 “空中街道”項目,但由於各種設計問題,項目於1994年被拆除。
在20世紀70年代及其後的幾十年中,許多此類建築群都因疏於管理、維護不善和犯罪問題而受到公眾和輿論界的反對,這種情況到近些年才有所好轉。
02. 大學建築

20世紀50年代後期,許多大學,尤其是英國的大學,開始採用粗野主義建築風格,部分原因是其造價低廉、施工快捷,與戰後擴大的公共和文化領域密切相關。
保羅·魯道夫設計的耶魯大學藝術與建築大樓是最著名的早期案例之一。魯道夫後來設計了馬薩諸塞大學達特茅斯分校的整個校園,其中大部分都採用了相同的風格。在其他情況下,校園建築的代表作,特別是芝加哥大學圖書館的一部分和楊百翰大學的表演藝術大樓,都是以粗野主義風格設計的。

= 耶魯大學藝術與建築大樓 =
英國隨著大學部門的擴張和新機構的開設,20世紀60年代興起了所謂的”平板玻璃大學”熱潮,因為英國各地都委託建造了引人注目的粗野主義建築,特別是埃塞克斯大學、東英吉利大學和格拉斯哥大學。加拿大多所大學也採用了粗野主義風格,比如多倫多大學的安德魯大樓。
03. 美國的粗野主義
1962年至1976年期間,粗野主義在美國大行其道,不僅用於學術建築,還用於圖書館、政府大樓、教堂和企業總部,尤其是科技公司總部。柯布西耶與奧斯卡·尼邁耶、華萊士·哈里森和馬克斯·阿布拉莫維奇就在這個時期共同設計了紐約的聯合國總部。
保羅·魯道夫是美國粗野主義建築的領軍人物,作為耶魯大學的建築學教授,他的理論和實踐都對後來的建築師產生了影響。
04. 巴西保利斯塔學派
正如第二次世界大戰後巴西在建築和混凝土藝術方面的發展一樣,巴西是粗野主義活動的另一個中心。20世紀50年代,聖保羅建築師若昂·巴蒂斯塔·比拉諾瓦·阿蒂加斯創立了所謂的”保利斯塔學派”,這是一個由巴西建築師組成的協會,他們都居住在聖保羅,喜歡使用裸露的混凝土、粗糙的表面和不朽的尺寸。
學派借鑑了始於1935年的巴西卡里奧卡學派的影響,但在戰後開始使用混凝土,其早期代表作之一是阿豐索·愛德華多·雷迪的巴西帕拉瓜伊小學。比拉諾瓦·阿蒂加斯與建築師卡洛斯·斯卡爾迪開始使用混凝土,後者設計的了莫倫比體育場,兩人還是頗具影響力的教師,後來共同創建了聖保羅大學建築與城市規劃學院。

= 莫倫比體育場 =
保羅·門德斯·達洛查之後成為了其中的領軍人物,他用被譽為”巴西粗野主義”典範的建築振興了聖保羅的城市景觀。聖保羅體育俱樂部是他早期設計的著名作品之一。
巴西粗野主義的一個顯著特點是其持久的文化生命力,因為這些建築與巴西文化有著深刻的聯繫,並反映了巴西的現代性。達洛查仍然是南美領先的建築師,並於2006年獲得普獎,評審委員會稱他”對空間詩學的深刻理解”和”具有深刻社會參與性的建築”。2016年,榮獲威尼斯建築雙年展終身成就金獅獎。
05. 蘇聯的粗野主義

在蘇聯和東歐,預製混凝土被廣泛用於建造公寓樓、政府大樓和紀念碑。20世紀50年代末,政府啟動了提高工業化和城市化水平的計劃,大量使用混凝土成為建造城市住宅的一種實用手段,反映了蘇聯人的集體生活理想。在俄羅斯,這些標準化的建築群被稱為“Panelki”(”板式建築”),因為它們是由預製混凝土板組成的。
另一方面,蘇聯的政府建築和紀念性建築往往具有創新性,採用不同尋常的結構形式,有時被比作UFO,或參照其他科幻小說的套路進行描述,如蘇聯之家就被稱為「被埋葬的機器人”。

= 蘇聯之家 =
喬治·查哈巴和祖拉布·賈拉格哈尼亞設計的喬治亞公路部(1971年)是粗野主義建築中比較著名的例子,它將原混凝土和未加工表面的使用與構成主義的影響結合在一起。在南斯拉夫有強調功能主義和使用原混凝土的建築流派的領袖博日達爾·揚科維奇,而在包括捷克斯洛伐克在內的其他國家,粗野主義被視為一種創造反映現代社會主義的民族風格的方式。
06. 後來的粗野主義
20世紀70年代,粗野主義受到了建築師和公眾的加倍抗議,而粗野主義與城市凋敝和犯罪的聯繫則體現在電影中對粗野主義外景地的使用上。
20世紀80年代,解構主義的興起結束了這一運動,但它在流行文化中繼續存在。
21世紀,粗野主義正在經歷復興,《粗野主義倫敦地圖》、《這個野蠻的世界》等書籍的出版就證明了這一點。儘管一些著名建築在公眾的強烈抗議下被拆除,但人們還是發起了保護運動,以拯救和恢復粗野主義建築。
包括卒姆託、安藤忠雄、裡伯斯金和已故的扎哈在內的許多當代建築師都創作了受粗野主義影響的作品。
2015年,瑞典藝術家奧拉維爾·埃利亞松將大塊冰川冰塊澆鑄在混凝土中製作成雕塑,隨後又為格陵蘭島的伊盧利薩特冰峽公園設計了建築。在2014年威尼斯雙年展上展出的裝置作品《發條耶路撒冷》,內容是一個從羅賓漢花園人造山丘上取下的中央圓形土堆,以向史密森夫婦倫敦東區的龐大、現已基本拆除的粗野主義住宅區致敬。

《發條耶路撒冷》
藝術史學家亞歷山德拉·蘭格在評論現代藝術博物館舉辦的”走向混凝土烏托邦”展覽時寫道:”我們現在為什麼喜歡混凝土建築,我的答案很簡單:它有身體,即使我們消費的是像素設計,我們也渴望能感受到世界重量的空間”。
」
* 圖片來源於網路 版權歸原作者所有 請勿商用
————
編輯/排版:Z
祝你開心
點選查看更多精彩
